- 130,000 £
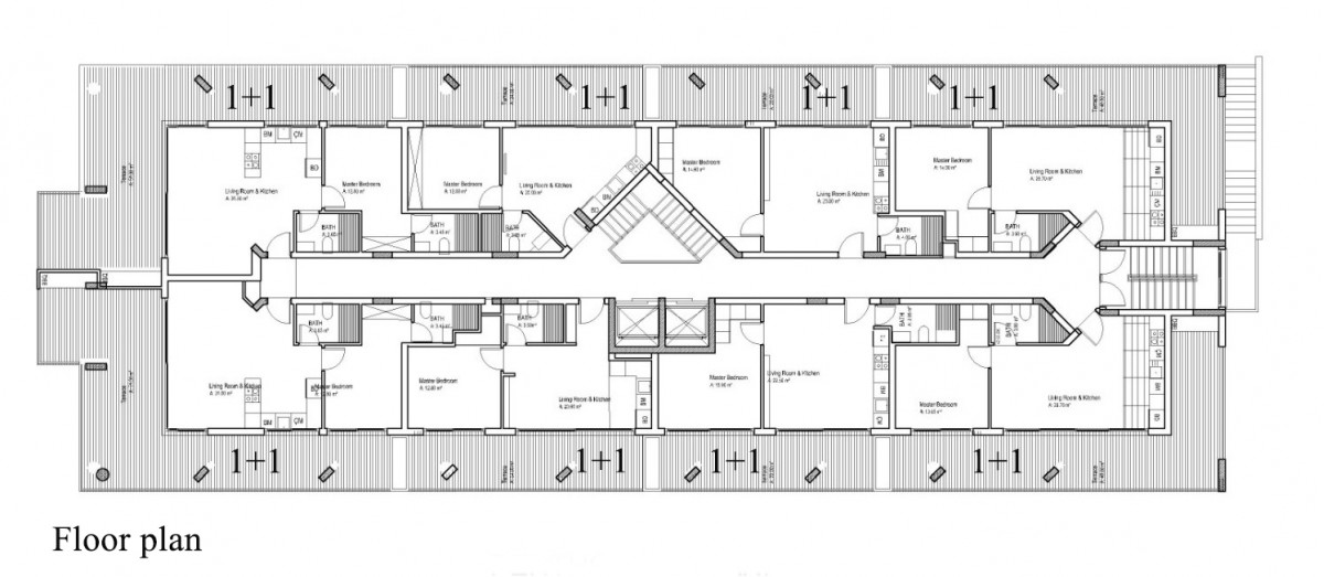
1+1 penthouse apartment consists of:
- kitchen-living room
- 1 bedroom
- bathroom with integrated toilet
- terrace
The price of the apartments includes full fit-out, built-in-furniture (built-in wardrobes in bedrooms, built-in kitchen), sanitary ware.
Houses are equipped with an elevator. A water pressure system, double-glazing windows, and doors, an air conditioning system, an intercom are also installed. The project includes parking, Internet infrastructure, and satellite infrastructure. The residential complex is maintained by a management company.
The complex ID 039 is located a few steps from a beautiful beach with all the facilities. The project provides for an infinity pool, restaurant. In walking distance, there is a SPA center, minimarket, surfing school, bars, and restaurants. The proximity of the city of Guzelürt offers the entire infrastructure of the city, including shops, markets, schools and kindergartens, hospitals, and a university.
Distances:
- Larnaka airport – 75 min
- Troodos ski resort – 40 min
- Nikosia – 30 min
- Guzelürt – 10 min
- Ercan airport - 50 min
-
Swimming pool
-
SPA
-
Restaurant
-
Indoor heated pool
-
Golf club
-
Fitness centre
-
Children's playground
-
Central Internet system
-
Central air conditioning system
-
Car park
-
Cafe
-
Bar
-
Bank
-
ATM
Ready-to-move-in
50% - down payment
50% - 2-years interest-free installment payment plan is provided.







